Railway worker house

via Castel Roncolo

39100

Bolzano, Italien


Besitzer

Alexandra Troi
alexandra.troi@eurac.edu

Bewohner

Pobitzer & Tengler
via Cassa di Risparmio 5, Bolzano (BZ)
weissenegger@in-arte.it
+39 0471 058080

Ansprechpartner

Alexandra Troi
Eurac Research
alexandra.troi@eurac.edu

Other Information

Related publications
Information comes from the building owner (Stephan Vale and Alexandra Troi) and the architects (in-arte). The documentation of the step-by-step refirbishment for the PHPP conference was done within PNRR project iNEST, Air-tightness testing was done within
east side windows and veranda (c) Troi
Bright, spacious rooms, terrazzo flooring in the corridor, and a veranda with a beautiful, delicate metal structure – from the moment one enters the stairwell of the old railway workers’ house in Bolzano, the atmosphere of the many stories this building can tell becomes tangible. Step by step, one of the apartments has been and is being renovated: first, the distinctive wolf’s-mouth windows were repaired and upgraded; after the crisis winter, the external walls were insulated and a ventilation system installed to protect future occupants from sharply rising heating costs. The next step towards climate neutrality will be the installation of a photovoltaic system.
Energieeffizienz
94,52 kWh/m2.y

Klimazone dfa

Höhe über dem Meer 256 m ü.d.M.

Heizgradtage 2570

Kühlgradtage 207

Unterschutzstellung nicht geschützt

Ensembleschutz:
Nein

Stufe der Unterschutzstellung:

Baualter 1900-1944

Letzte Sanierung:
2023

Vorhergehende Sanierungen:
2017

Gebäudenutzung Residential (urban)

zusätzliche Nutzung:
NA

Gebäudebelegung:
Permanently occupied

Anzahl der Bewohner/Nutzer:
2

Gebäudefläche Nettogeschossfläche [m²]: 83,4

Gebäudetyp:
One apartment in the apartment block

Anzahl der Stockwerke:
1

Keller ja/nein:
Ja

Anzahl der beheizten Stockwerke:
1

Bruttogeschossfläche [m²]:
107,0

Thermische Gebäudehülle [m²]:
240,0

Volumen [m³]:
375,0

NGF Berechnungsmethode:
NGF (de)

Bauart
Brick masonry wall

Außen:
Rendered

Innen:
Plastered (on hard)

Dach:
Flat roof

+ MEHR - WENIGER
east side windows and veranda (c) Troi
east side windows and veranda (c) Troi
Railway worker house, facade
Railway worker house, facade
Railway worker house, facade
Railway worker house, facade

RENOVIERUNGS-PROZESS

Architektur

BESCHREIBUNG

The building is located in the historic centre of Bolzano and was constructed in the late 1920s as housing for railway workers employed by the Italian railway company. It is a multi-family residential building comprising approximately 35 dwelling units, currently organized as a condominium. Although not formally listed, the building exhibits architectural and typological features worthy of preservation and is situated within a historically protected urban context. The intervention concerns a single apartment, undergoing a stepwise refurbishment process aimed at improving energy and comfort performance while respecting the building’s historic character.

Erhaltungszustand

Erhaltungszustand der Gebäudehülle
Before the intervention, the apartment was in a condition typical of a historic building that had undergone only limited alterations, with most original construction features still intact. Until 2005, the flat had been barely modified and was not connected to the central heating system; an individual gas boiler was added only in 2010. Energy performance and indoor comfort were inadequate, as windows, building envelope, and building services no longer met contemporary standards, although no major structural deterioration was observed.

DENKMALWERT

ERHALTENSWERTE ELEMENTE
The building includes several architectural and construction elements of value that are worthy of preservation. In particular, the original typological layout, the historic plastered façades, and the original box-type windows with “Wolfsrachen” detailing, representative of the construction quality of the period, should be conserved. Additionally, historic materials and finishes, as well as the building’s relationship with the historic urban context, are considered key elements contributing to the overall heritage value.
Denkmalwert und wie er bestimmt wurde
The building has notable cultural significance as a representative example of late-1920s residential housing for railway workers in Bolzano. Its architectural value lies in the clear typological layout, balanced façade composition, and preserved original construction details, such as the historic windows. From an aesthetic perspective, the building contributes to the formal continuity of the historic urban fabric, surrounded by buildings protected as ensembles. Its social value is linked to the history of workers’ housing, while its technological value reflects traditional, robust construction techniques that remain durable and adaptable, now enhanced through compatible energy retrofit interventions.

Ziel der Sanierung

Renovation
The aim of the retrofit is to significantly improve the energy performance and indoor comfort of the dwelling unit while reducing energy demand and related emissions, in full respect of the architectural and typological values of the historic building. The intervention seeks to demonstrate the feasibility of a stepwise energy refurbishment approach applied to individual apartments within historic multi-family buildings, using compatible, reversible, and technically robust solutions that ensure durability, hygrothermal safety, and high indoor environmental quality.
Gewonnen Erkenntnisse / besondere Erfahrungen
The project demonstrated that deep energy retrofit is feasible even at the level of a single dwelling unit within historic multi-family buildings, despite decision-making constraints related to multi-ownership. A key lesson is the importance of a stepwise and integrated approach, supported by hygrothermal analysis, detailed thermal bridge assessment, and close coordination between envelope and building services. The use of compatible internal solutions and capillary-active materials proved effective in balancing energy efficiency, building safety, and heritage conservation. The project also highlights the value of in-use performance verification to validate calculated results.
Eingesetzte Software/Berechnungstools
Folgte die Sanierung einer spezifischen Methode? PHPP, Delphin, ProCasaclima HT, Thermcalc

SANIERUNGS-LÖSUNGEN

Außenwände

Brick masonry

Brick masonry

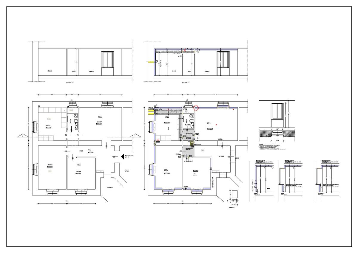
The solid brick wall, 60 cm thick and plastered on both the interior and exterior sides, was upgraded as part of the energy retrofit by applying 16 cm of internal wood fiber insulation. This was achieved by combining a 10 cm panel with a 6 cm panel. Particular attention was paid to ensuring a full-surface adhesive installation of the insulation in order to completely avoid any rear ventilation and to allow the wood fiber insulation to fully exploit its capillary-active properties. The airtight connection to the floor slab was also carefully executed. At the junction with the floor, where heating pipes run (previously installed surface-mounted), the inner 6 cm insulation layer was omitted over a height of 10 cm, creating a recess for routing the services, which was subsequently finished with plaster.

The wall was insulated from the inside, not only because, in the renovation of a single apartment within a multi-family building, this is effectively the only feasible approach, but also because it allows the characteristic external plaster to remain visible and unchanged.

U-Wert (vor Sanierung) [W/m2K]: 1,185 W/m²K U-Wert (nach Sanierung) [W/m2K]: 0,2 W/m²K
Mehr Details
Aufbau Bestandswand
Plaster - Plaster:
50 mm
Brick - Full bricks:
570 mm
Plaster - Plaster:
50 mm
Aufbau sanierte Wand
Plaster - Plaster:
50mm
Brick - Brick masonry:
570 mm
Plaster - Plaster:
15 mm
Other - glue:
5 mm
Insulation - Woodfiber:
160 mm
Plaster - Plaster:
50 mm


Fenster

Standard WIndow

Standard WIndow

The renovation upgraded the windows’ performance through repair and retrofit while preserving their historic character (e.g., box-type windows with the “Wolfsrachen” detail). It significantly reduced overall Uw (e.g., box-type windows from 2.1 to 1.05 W/m²K) without changing the original typology.

The intervention is conservation-compatible because it preserves the building’s historic features by refurbishing and upgrading the original windows (e.g., box-type windows with the “Wolfsrachen” detail) rather than replacing them.

Bestandsfenster U-Wert Glas [W/m2K]: 2,1 Neues Fenster U-Wert Glas [W/m2K]: 1,25 Bestandsfenster U-Wert Rahmen [W/m2K]: 2,1 Neues Fenster U-Wert Rahmen [W/m2K]: 1,25
Mehr Details
Fenstertyp Bestand Casement window
Verglasungsart Bestand Single
Verschattung Bestand Outer shutter
Ungefähres Einbaujahr 1900
Neuer Fenstertyp Casement window
Verglasungsart des neuen Fensters Double
Verschattung des neuen Fensters NA
Neuer Energiedurchlassgrad g [-] 0,56

Weitere Maßnahmen

DACH

DACH

The intervention insulated the ceiling towards the attic with about 20 cm of insulation, achieving a final U-value of about 0.16 W/m²K.

The intervention is generally conservation-compatible because it is carried out from the inside and does not change the roof geometry or exterior appearance. Compatibility mainly depends on correct installation and detailing that avoids discontinuities or interference with valuable elements.

U-Wert (vor Sanierung) [W/m2K] 1.185 U-Wert (nach Sanierung) [W/m2K] 0.2
Mehr Details
Aufbau Bestandsdach
Brick - Floor leading to the attic:
450 mm
Plaster - Plaster:
50 mm
Aufbau saniertes Dach
Brick - Floor leading to the attic:
450 mm
Insulation - Woodfiber:
200 mm
Plaster - Plaster:
15 mm

HVAC

LÜFTUNG

LÜFTUNG

The renovation involved changes to building services, including the installation of a mechanical ventilation system to complement the internal insulation retrofit. This upgrade aims to ensure adequate air exchange and better control of humidity and indoor air quality.

The intervention is generally conservation-compatible because it adds an internal building-services system without changing the building’s exterior appearance or key architectural features. As this is a conventional solution, compatibility mainly depends on discreet integration and minimally invasive service routes.

Mehr Details
Aufbau Bestandsdach Neues Lüftungssystem
Lüftungstyp Decentralized
Type flow regime NA (Natural)
Wärmerückgewinnung Nein
Feuchterückgewinnung Nein
Nennleistung - kW
Elektrische Leistung 0,02 kW
Regelung -

Energieeffizienz

Energieeffizienz
Energieausweis Italian EPC, "Attestato di Prestazione Energetica"
Freiwillige Zertifikate Nein
Energievrabrauch
Heizung
Primärenergie 94,52 kWh/m2.y
Documents:
231229_APETroiRunkelsteinstraße.pdf
Italian EPC

Energieverbrauch nach Sanierung 94,52 kWh/m2.y

Primärenergie
Berechnungsmethode Steady state simulation (e.g. EPC, PHPP)
Energieverbrauch incl Brauchwarmwasser Ja
Energieverbrauch nach Sanierung 94,52 kWh/m2.y

Kosten

Finanzielle Aspekte

Final cost of the retrofit: 59.000€

Investitionskosten
Total investment costs
59.000€ (total)
Betriebskosten
Lifecycle cost
Nein

Umwelt

Treibhausgasemissionen
Methodology_used: LCA
Life Cycle Analysis
Methodology_used: One-click LCA tool
Leider wurde noch kein freigegebenes Projekt gefunden